아~~ 대한민국 우리나라는 아파트 공화국이다. 아파트가 아닌 단독주택은 오래된 동네에 있을 뿐 새로 지은 집을 찾아보는 게 쉽지 않다. 아무리 아파트에 사는 게 싫어서 단독주택을 지어서 살고 싶어도 땅값도 이만저만 비싼 게 아닌 데다 이웃해서 지낼 집이 없는 것도 문제다. 진정 도심지에 단독주택을 지어 살 수 있는 방도는 없는 것일까?
근래에 설계했던 단독주택 작업은 모두 상가주택이다. 한 채는 일층에 건축주의 사업장이 들어가고 이층과 삼층에 가족들의 보금자리로 지었다. 또 다른 한 채는 일층에 근린생활시설, 이층에는 다가구주택 세 가구를 수익형 용도를 넣고 삼층에 단독주택이 들어갔다. 도시형 단독주택이지만 아파트와 다른 우리 식구들만의 스위트 홈으로 살 수 있는 우리집이다.
남들은 집 지을 수 없다는 땅을 찾아라
건축주가 계약했다는 땅을 받아보니 황당하고 당황할 따름이었다. 대지 형태는 폭이 좁고 긴 데다 모양마저 자루 없는 부엌칼 같았다. 이 정도라면 남향으로 앉았으면 좋으련만 정서향인 데다 도로마저 경사져 있는 최악의 조건이었다. 이런 여건의 땅이라면 누가 보아도 집을 지으려고 구입할까 싶었다.
젊은 건축주는 도심지에 사업장도 필요했고 막내는 초등학생이어서 마음대로 뛰고 굴리며 지내려면 단독주택에서 살고 싶었다. 마침 땅값이 집을 짓는 예산에 맞는 땅이 나타나서 따지지도 않고 구입했다고 했다. 더구나 그 땅은 무허가로 지은 3층 집이 있었으니 단독주택으로 설계만 하면 자신이 바라는 집을 지을 수 있을 것이라 여겼을지도 모른다.


장방형도 아니고 정방형도 아닌 직각이라고는 없는 이형(異形)의 대지이다. 너비라도 여유가 있으면 건폐율에 맞춰 평면을 구성하면 되는데 그마저도 쉽지 않은 조건이다. 자화자찬이지만 건축사를 잘 만난 건축주는 그가 바라는 집을 지을 수 있게 되었다. 건축주는 대지의 조건에는 관심이 없고 내가 살 집이 제대로 나왔는지 결과만 따질 수밖에 없지 않은가?
단독주택을 짓는 땅으로 설계에 유리하다고 볼 수 있는 여건은 전혀 보이지 않는데 작업은 시작되었다. 단독주택은 무조건 남향집, 거실채와 침실채로 채 나눔, 마당은 꼭 두어야 하며 거실 상부는 경사지붕으로 천정고를 높여야 한다는 나의 설계 방침은 확고하다. 대지 조건은 최악이지만 설계 작업이 끝나면 세상에서 하나밖에 없는 우리집이 되어야 한다.
당호를 양명재(陽明齋)로 짓고 설계를 마치다
이 집의 당호는 햇살 밝은 집이라는 뜻인 ‘양명재(陽明齋)’로 지었다. 양명한 빛이란 남향 햇살인데 양기(陽氣)가 집 안에 충만한 서기만당(瑞氣滿堂)인 집이었으면 하는 바람을 담았다. 양명재는 당호가 뜻하는 바라면 남향의 밝은 빛이 잘 드는 집이 되어야 할 것이다. 남향 대지라면 남향집으로 설계하는데 무슨 어려움이 있을까?
대지는 도로에 길게 면한 부분이 서향이라 남향집을 지을 수 있다는 생각을 아예 할 수 없는 조건이다. 서향으로 앉을 수밖에 없는 배치 여건을 가졌으니 설계 작업에서 어떤 묘수를 부려서 남향의 햇살을 어떻게 집 안에 들일 수 있었을까? 대안에 대안을 거듭해서 묘수가 나왔으니 설계자의 능력이 아니라 꼭 바라는 결과를 만들어 내겠다는 일념으로 남향 햇살을 집 안으로 들이는 안을 만들어낼 수 있었다.




건축주가 꼭 남향집을 원했다면 아마도 이 땅을 집터로 삼지 않았을 것이다. 이 땅은 남북으로 긴 데다 대지 형태가 북쪽은 칼처럼 뾰족하고 대지에 면한 도로도 제법 급한 경사길이다. 대지 폭마저 평면을 구성할 여유를 가지지 못한 여건인데도 맘에 드는 집이 나오니 무릎을 치며 쾌재를 불렀다. 건축주가 설계자의 이 마음에 얼마나 공감했을지 궁금하다.
물 좋고 정자 좋은 터가 없다면 어느 한쪽을 취하고 부실한 부분을 보완하면 된다. 그렇지만 물도 좋지 않고 정자도 좋은 여건이 되기 어렵다면 어떻게 해야 할까? 발상의 전환이라는 말은 쉽게 쓰지만 실제로 적용해서 만족한 결과를 만들어내느라 수많은 대안이 검토되었다. 장담할 수 없는 어려운 여건의 대지는 사라지고 이대로 지어도 좋을 집으로 설계가 나왔다.
지어진 양명재는 그야말로 서기만당(瑞氣滿堂)
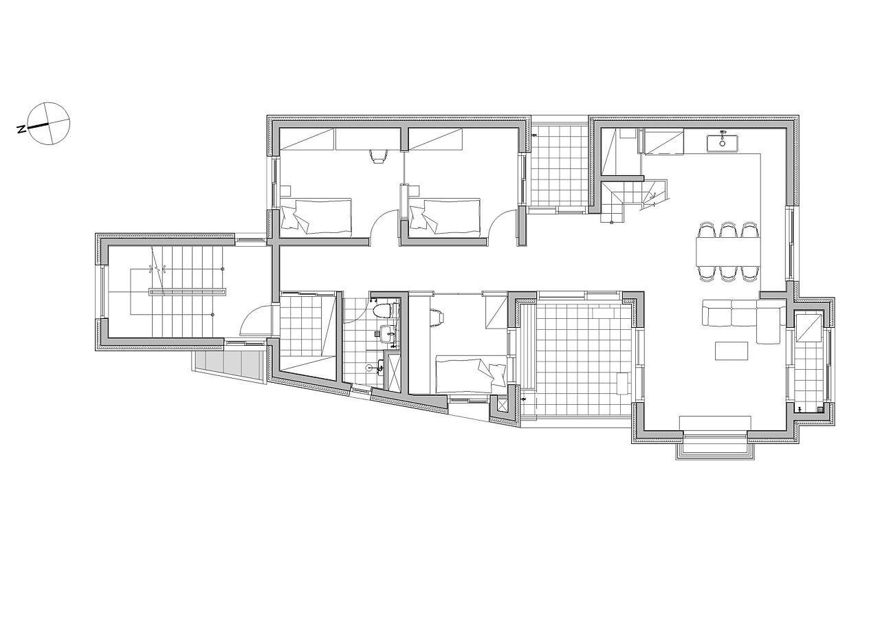
남향 햇살이 집 안에 들 수 있도록 대지의 남쪽에 낮에 쓰는 공간인 거실 영역을 앉혔다. 대지의 북쪽에 계단실과 현관이 있는 자리다 보니 방은 긴 복도의 양옆에 위치하게 된다. 방에도 남향의 햇살을 들여야 당호에 걸맞을 것이라 중정과 마당을 넣어서 해결했다. 작은 마당이지만 그 역할은 결코 적지 않다. 현관에서 거실까지 이어지는 거리는 좀 길지만 마당과 만나면서 기분 좋은 공간감을 가지게 되었다.
방에 면하는 복도와 거실 사이의 공간에서 다락으로 올라가는 계단과 작은방에 햇살을 들이는 중정과 마당이 보인다. 방 하나를 제외한 모든 방은 남향의 밝은 햇살이 든다. 건축주의 방으로 쓰는 3층은 윗 마당에 면해 방 전체가 남향의 햇살이 든다. 양명재라는 당호에 걸맞게 온 집 안에 남향의 햇살로 가득하니 서향 대지의 조건은 오간 데 없는 집이 되었다.






거실은 남향으로는 밝은 햇살을 받고, 북향은 마당으로 나갈 수 있으며, 집의 정면이 되는 서쪽으로는 큰 창으로 먼 산이 액자의 그림처럼 풍경으로 담긴다. 거실은 경사지붕 아래 높은 공간감을 가지고, 계단을 통해 다락에 오르면 윗 마당으로 바로 이어진다. 작은 집이지만 올망졸망 엮인 내외부의 공간 체계는 양명재에서 살 건축주 식구들 일상의 다양한 삶을 담아 행복한 생활이 함께 하게 될 것이다.
서향 대지인데 남향집이 되었고, 침실 영역과 거실 영역은 나뉘어 채 나눔 개념이 적용되었다. 작은 마당에는 햇살이 담겨 온 집 안에 밝은 기운이 그득하고 밖에서 할 수 있는 일상이 있어 생동감 넘치는 생활이 이루어질 것이다. 거실은 깊은 공간감으로 우리집이 갖는 우월한 자부심이 생기고 넉넉한 다락 공간에서 할 수 있는 일은 얼마나 많을까?
대지 조건의 난이도만큼 집을 짓는 과정도 쉽지 않았지만 능력 있는 시공자는 잘 지어냈다. 3층 집인데도 공사기간이 7개월이나 걸렸는데 내색 없이 열정을 식히지 않고 설계의도가 구현되도록 시공 결과가 만들어졌다. 건축주 부부께서도 설계부터 시공까지 전문가를 믿고 맡겨주었기에 좋은 집을 지을 수 있었다. 부산의 도심에 단독주택을 지어 살겠다는 젊은 건축주의 뜻이 마침내 식구들이 행복하게 살 집으로 실현되었다.
집은 행복이 솟아나는 샘과 같다. 집에서 행복하지 않다면 어디에서 몸과 마음을 쉬게 할 수 있을까? 양명재에서는 집 안에 드는 밝은 햇살처럼 행복이 넘쳐나게 될 것이라 믿어 의심치 않는다. 건축사는 설계를 시작할 때의 기대가 완공된 결과물로 온전하게 드러날 때 보람과 함께 이 일의 자부심으로 충만해진다. 최악의 조건을 가진 대지에 이보다 더 좋을 수 없다는 확신이 드는 집이 양명재라는 당호의 의미에 꽉 차도록 지어졌다. 참 좋다.
여성경제신문 '더봄' 연재 - '김정관의 단독주택 인문학' 29
원문 읽기 - https://www.womaneconomy.co.kr/news/articleView.html?idxno=240618
'집 이야기 > 여성경제신문연재-단독주택인문학' 카테고리의 다른 글
| 단독주택 인문학 31 - ‘우리집에서 누릴 행복’이라는 프로그램을 담은 단독주택 (0) | 2025.09.29 |
|---|---|
| 단독주택 인문학 30 - 상가주택은 도시에서 단독주택에 살 수 있는 최적의 대안 (0) | 2025.09.15 |
| 단독주택 인문학 28-양동마을 관가정에서 가져온 집의 얼개로 지은 단독주택 (8) | 2025.08.18 |
| 단독주택 인문학 27 - 손주가 자주 찾아오니 또한 즐겁지 아니한가? (7) | 2025.08.05 |
| 단독주택 인문학 26-단독주택 처마 아래 공간에서 일어나는 엄청난 일 (11) | 2025.07.21 |